大田閥公司生產銷售的三通球閥有T型和L型。T型能使三條正交的管道相互聯通和切斷第三條通道,起分流、合流作用。L三通球閥型只能連接相互正交的兩條管道,不能同時保持第三條管道的相互連通,只起分配作用。 三通球閥的工作原理是靠旋轉閥戀來使閥門暢通或閉塞。球閥開關輕便,體積小,可以做成很大口徑,密封可靠,結構 簡單,維修方便,密封面與球面常在閉合狀態,不易被介質沖蝕,在各行業得到廣泛的應用。 三通球閥在管路中主要用來做切斷、分配和改變介質的流動方向。球閥是近年來被廣泛采用的一種新型閥門 三通球閥是一種比較新型的球閥類別,它有著自身結構所獨有的一些優越性,如開關無摩擦,密封不易磨損,啟閉力矩小。這樣可減小所配執行器的規格。配以多回 轉電動執行機構,可實現對介質的調節和嚴密切斷。廣泛適用于石油、化工、城市給排水等要求嚴格切斷的工況。
| 設計依據Design Standard | GB | ASME |
|---|---|---|
| 設計標準 Design Standard | GB/T 12237 | ASME B 16.34 |
| 結構長度 Face to Face | GB/T 12221 | ASME B 16.10 |
| 連接法蘭Flanged Size | JB/T 79 | ASME B16.5 |
| 實驗和檢驗 Test and Inspection | JB/T 9092 | API 598 |
注:系列閥門連接法蘭尺寸可根據用戶要求設計制造。
| 序號 | 零件名稱 | 材質 | ![]() 注:系列閥門主要零部件及密封面的材質可根據實際工況調價或用戶特殊要求設計選用 |
|
|---|---|---|---|---|
| GB | ASTM | |||
| 1 | 右體 | WCB | A216-WCB | |
| 2 | 螺母 | 35 | A194-2H | |
| 3 | 螺柱 | 35CrMoA | A193-B7 | |
| 4 | 墊片 | 柔性石墨+不銹鋼 | 柔性石墨+不銹鋼 | |
| 5 | 密封圈 | PTFE | PTFE | |
| 6 | 球體 | 25+ENP | A105 + ENP | |
| 7 | 密封圈 | PTFE | PTFE | |
| 8 | 閥體 | WCB | A216-WCB | |
| 9 | 密封圈 | PTFE | PTFE | |
| 10 | 密封圈 | PTFE | PTFE | |
| 11 | 閥座 | 25 | A105 | |
| 12 | O型圈 | 氟橡膠 | 氟橡膠 | |
| 13 | 預緊螺母 | 25 | A105 | |
| 14 | 填料 | 1Cr13 | A276-410 | |
| 15 | 閥桿 | 1Cr13 | A182-F6a | |
| 16 | 墊片 | PTFE | PTFE | |
| 17 | 填料 | 柔性石墨 | 柔性石墨 | |
| 18 | 螺釘 | 35CrMoA | A193-B7 | |
| 19 | 填料壓蓋 | WCB | A276-WCB | |
| 20 | 定位片 | Q235A | 碳鋼 | |
| 21 | 擋圈 | 65Mn | AISI 1556 | |
| 22 | 手柄 | KT330-08 | A47-667 32510 | |

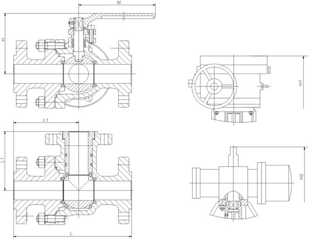
| DN (mm) | 15 | 20 | 25 | 40 | 50 | 65 | 80 | 100 | 125 | 150 | 200 | 250 | 300 | |
|---|---|---|---|---|---|---|---|---|---|---|---|---|---|---|
| NPS(in) | 1/2 | 3/4 | 1 | 11/2 | 2 | 21/2 | 3 | 4 | 5 | 6 | 8 | 10 | 12 | |
| L | 140 | 165 | 165 | 250 | 260 | 320 | 320 | 370 | 510 | 510 | 580 | 680 | 720 | |
| L1 | 70 | 83 | 83 | 125 | 130 | 160 | 160 | 185 | 255 | 255 | 290 | 335 | 360 | |
| 手動 | H | 64 | 84 | 84 | 152 | 157 | 183 | 183 | 195 | 355 | 355 | 430 | 475 | 550 |
| W | 130 | 160 | 200 | 500 | 500 | 600 | 600 | 700 | 850 | 850 | 1000 | 1000 | 1000 | |
| Kg | 3.5 | 4.5 | 6.8 | 10.5 | 14.2 | 22.1 | 28.5 | 49.5 | 58.4 | 65.2 | 75.8 | 95.2 | 125 | |
| 電動 | H1 | - | - | - | - | - | - | 546 | 558 | 718 | 742 | 817 | 878 | 946 |
| 電動裝置 | - | - | - | - | - | - | Q60-1 | Q60-1 | Q60-1 | Q120-1 | Q120-1 | Q120-1 | Q120-1 | |
| 氣動 | H2 | 215 | 235 | 260 | 328 | 400 | 427 | 488 | 500 | 660 | 756 | 831 | 952 | 1020 |
| 電動裝置 | AG09 | AG09 | AG13 | AG13 | AW13 | AW13 | AW13 | AW17 | AW17 | AW20 | AW20 | AW28 | AW28 | |
![]() 三通球閥T型通 |
![]() 實線:三通球閥T型通口 虛線:三通球閥L型通口 |
![]() |
|
| 三通球閥L型通口 | |
L 型流道的三通 4 面閥座球閥,采用 2 面閥座,受力平衡,保證閉止通道上可靠密封。主要用于流路的換向。
T 型流道的三通 4 面閥座球閥,采用 4 面閥座,受力平衡,保證閉止通道上可靠密封。主要用于分流、混流、換向以及三通道的完全開放。
| 通徑 /壓力 | 15 | 20 | 25 | 40 | 50 | 65 | 80 | 100 | 125 | 150 | 200 | 250 | 300 |
|---|---|---|---|---|---|---|---|---|---|---|---|---|---|
| PNl.6 | 5 | 8 | 15 | 24 | 35 | 75 | 100 | 180 | 350 | 500 | 730 | 1210 | 1950 |
| PN2.5 | 5 | 8 | 16 | 27 | 45 | 90 | 120 | 210 | 450 | 600 | 1000 | 1600 | 2800 |
| PN4.0 | 8 | 15 | 36 | 50 | 75 | 145 | 220 | 350 | 650 | 850 | 1450 | 2400 | 4200 |
| 通徑 /壓力 | 1/2 ″ | 3/4 ″ | 1 ″ | 11/2 ″ | 2 ″ | 21/2 ″ | 3 ″ | 4 ″ | 5 ″ | 6 ″ | 8 ″ | 10 ″ | 12 ″ |
| CIass 150 | 5 | 8 | 16 | 24 | 38 | 75 | 95 | 185 | 380 | 600 | 1050 | 1650 | 2625 |
| Class 300 | 8 | 18 | 38 | 58 | 90 | 180 | 240 | 420 | 900 | 1425 | 2300 | 3000 | 4950 |
注:表中所列數據未經實際測定,僅供參考。